EN PT

Spa / Angela Castilho Arquitetura e Interiores

Um Refúgio para os Sentidos

Spa / Angela Castilho Arquitetura e Interiores - Fotografia de Interiores, Sala de Estar, Madeira, Viga, Cadeira

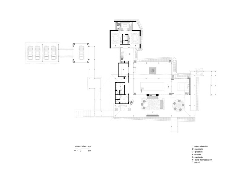
Em meio à natureza exuberante, o Spa do Rancho se revela como um verdadeiro santuário para o bem-estar e a serenidade. A equipe de projeto, sob a liderança da renomada arquiteta Angela Castilho, atendeu ao anseio do cliente de criar um espaço que transcende o comum, onde cada detalhe foi pensado para proporcionar uma experiência única aos visitantes. Com uma paleta de cores suaves e materiais que dialogam harmoniosamente com o ambiente, o spa é um convite ao relaxamento. O projeto inclui piscinas de diferentes temperaturas, cada uma com sua própria identidade, que permitem aos hóspedes alternar entre momentos de calor e frescor, estimulando a circulação e revitalizando o corpo. As salas de massagem, envoltas em aromas delicados, oferecem um refúgio de tranquilidade, permitindo que os sentidos sejam guiados por toques habilidosos, enquanto a sauna, com seu calor envolvente, propicia um momento de introspecção e renovação. As áreas de descanso, cuidadosamente posicionadas para garantir vistas deslumbrantes da natureza ao redor, são o local ideal para uma pausa revitalizante, onde o tempo parece desacelerar. Assim, o Spa do Rancho não é apenas um espaço físico, mas uma ode ao tempo, ao silêncio e à íntima conexão com a natureza, proporcionando uma experiência sensorial inigualável. Agora, você pode acompanhar as atualizações das contas que escolheu seguir, conectando-se ainda mais a seus autores, escritórios e usuários favoritos, personalizando assim a sua jornada pelo universo da arquitetura e do design.

Mantenha-se Informado

Receba nossa seleção semanal de projetos e reflexões sobre arquitetura.