EN PT

O Renascimento de uma Jóia Vienense

A Villa Beer, um ícone do Modernismo vienense, abre suas portas com esplendor renovado em 2026

Villa Beer Renovation / Christian Prasser Architektur - Exterior Photography, Concrete

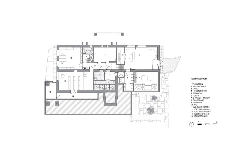
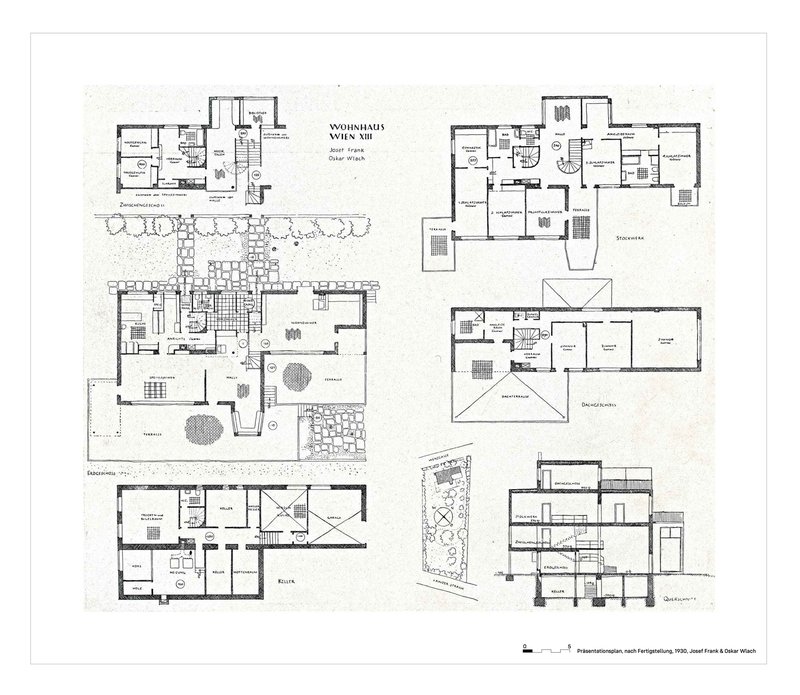
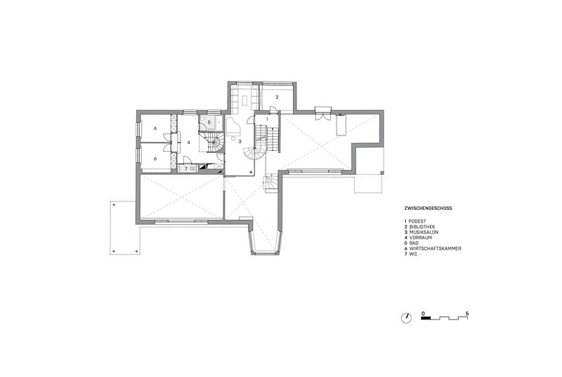
Em um bairro sereno de Viena, onde a história e a modernidade se entrelaçam em um balé arquitetônico atemporal, a Villa Beer ressurge como uma fênix das cinzas do tempo. Este magnífico edifício, concebido em 1929 pelos visionários Josef Frank e Oskar Wlach, é mais do que uma residência; é uma declaração de estilo e inovação que ressoa profundamente na alma do Modernismo vienense.

Villa Beer Renovation / Christian Prasser Architektur - Exterior Photography, Balcony
Villa Beer Renovation / Christian Prasser Architektur - Exterior Photography, Balcony

Após décadas de silêncio e anonimato, a Villa Beer prepara-se para receber o público em março de 2026, revelando-se com a mesma audaciosa elegância que a consagrou como um dos pilares da arquitetura residencial do século XX. A restauração meticulosa, fruto de anos de pesquisa e cuidado artesanal, devolveu ao edifício sua essência original, permitindo que cada visitante experimente a mesma atmosfera que encantou a família Beer há quase um século.

Villa Beer Renovation / Christian Prasser Architektur - Image 2 of 51
Villa Beer Renovation / Christian Prasser Architektur - Image 2 of 51

Ao adentrar os espaços da Villa, somos imediatamente envolvidos por uma sinfonia de luz e sombra. As amplas janelas, verdadeiras molduras para a paisagem vienense, permitem que a luz natural dance pelos interiores, destacando a harmonia dos materiais escolhidos por Frank e Wlach. O uso criterioso do mármore, da madeira e do vidro confere ao ambiente uma qualidade quase etérea, onde a simplicidade encontra a sofisticação em uma fusão perfeita.

Villa Beer Renovation / Christian Prasser Architektur - Interior Photography, Lighting, Chair
Villa Beer Renovation / Christian Prasser Architektur - Interior Photography, Lighting, Chair

Os visitantes são convidados a percorrer os salões e corredores da Villa, cada um revelando uma nova perspectiva sobre a vida moderna que Frank e Wlach idealizaram. A planta fluida do edifício, desprovida de barreiras desnecessárias, promove uma sensação de continuidade e liberdade, enquanto os detalhes ornamentais, cuidadosamente restaurados, celebram a união entre funcionalidade e beleza.

Villa Beer Renovation / Christian Prasser Architektur - Interior Photography, Wood, Handrail, Stairs
Villa Beer Renovation / Christian Prasser Architektur - Interior Photography, Wood, Handrail, Stairs

O salão principal, com suas proporções grandiosas e vistas panorâmicas, é o coração palpitante da Villa. Aqui, o jogo de luzes e reflexos cria uma experiência sensorial enriquecedora, evocando a atmosfera dos salões vienenses onde a alta sociedade se reunia para celebrar as artes e a cultura. Ao mesmo tempo, os espaços mais íntimos da casa, como a biblioteca e os quartos, oferecem um refúgio de contemplação, onde o silêncio e a serenidade são companheiros constantes.

Villa Beer Renovation / Christian Prasser Architektur - Interior Photography
Villa Beer Renovation / Christian Prasser Architektur - Interior Photography

A abertura da Villa Beer ao público em 2026 não é apenas uma oportunidade de apreciar uma obra-prima da arquitetura, mas também de refletir sobre a relevância contínua do Modernismo em nosso mundo contemporâneo. Em uma era onde a conexão entre o passado e o presente é frequentemente negligenciada, a Villa Beer nos lembra que a verdadeira inovação está enraizada no respeito pela história e na busca incessante por novas formas de expressão.

Villa Beer Renovation / Christian Prasser Architektur - Exterior Photography, Door, Concrete, Balcony
Villa Beer Renovation / Christian Prasser Architektur - Exterior Photography, Door, Concrete, Balcony

Assim, ao cruzar o limiar desta icônica residência, somos convidados a não apenas observar, mas a sentir, a respirar a essência do Modernismo vienense. A Villa Beer não é apenas um edifício restaurado; é uma experiência imersiva que nos transporta para uma era de glamour e criatividade, onde a arquitetura não era apenas uma construção, mas uma arte viva.

Villa Beer Renovation / Christian Prasser Architektur - Exterior Photography, Balcony
Villa Beer Renovation / Christian Prasser Architektur - Exterior Photography, Balcony

Com sua reabertura, a Villa Beer reafirma seu lugar como um testemunho duradouro do gênio criativo de Josef Frank e Oskar Wlach, continuando a inspirar e fascinar gerações de admiradores da arquitetura ao redor do mundo.

Villa Beer Renovation / Christian Prasser Architektur - Exterior Photography, Concrete
Villa Beer Renovation / Christian Prasser Architektur - Exterior Photography, Concrete

Mantenha-se Informado

Receba nossa seleção semanal de projetos e reflexões sobre arquitetura.