EN PT

Reflexos de Elegância no Coração de Herzogpark

Um refúgio de sofisticação onde a tradição encontra o contemporâneo.

Kolberger 5 Residence / Studio Mark Randel + David Chipperfield - Exterior Photography

No âmago de Munique, onde o tempo parece sussurrar histórias passadas e o presente se deleita em uma dança de prosperidade, encontra-se o Herzogpark. Este bairro, apesar de sua evidente afluência, conserva uma aura de originalidade e charme que raramente se vê nas grandes metrópoles. Entre alfaiates tradicionais, padeiros que perpetuam receitas ancestrais e açougueiros de longa data, pulsa uma vitalidade que transcende gerações. Foi neste cenário idílico que um cliente visionário adquiriu um generoso lote duplo, situado em uma rua residencial que se alinha perfeitamente com a serenidade do parque. A missão era clara: conceber um edifício residencial que não apenas dialogasse com a paisagem única ao seu redor, mas que também oferecesse um padrão de vida elevado, digno de sua localização privilegiada.

Kolberger 5 Residence / Studio Mark Randel + David Chipperfield - Exterior Photography
Kolberger 5 Residence / Studio Mark Randel + David Chipperfield - Exterior Photography

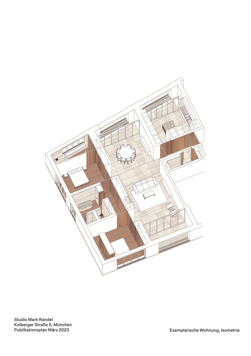
O desafio foi abraçado com maestria pelo Studio Mark Randel em colaboração com o renomado arquiteto David Chipperfield. Juntos, eles teceram uma narrativa arquitetônica que se desdobra em quatro a cinco andares, cada um contando uma história que ressoa com o início do século XX, época em que a maioria das estruturas vizinhas foram erguidas. A fachada do edifício, uma sinfonia de linhas limpas e proporções clássicas, é uma ode ao passado, enquanto suas soluções internas revelam uma abordagem contemporânea, onde cada detalhe é uma declaração de estilo e funcionalidade.

Kolberger 5 Residence / Studio Mark Randel + David Chipperfield - Interior Photography, Wood
Kolberger 5 Residence / Studio Mark Randel + David Chipperfield - Interior Photography, Wood

Ao adentrar o edifício, o visitante é imediatamente envolvido por uma atmosfera de tranquilidade e requinte. A luz natural, filtrada através de amplas janelas, banha os interiores em um brilho suave, criando um jogo de sombras que dança sobre superfícies de mármore polido e madeira cuidadosamente selecionada. Cada espaço foi meticulosamente planejado para maximizar o conforto e a estética, proporcionando um refúgio de serenidade em meio à agitação urbana.

Kolberger 5 Residence / Studio Mark Randel + David Chipperfield - Interior Photography, Wood, Concrete
Kolberger 5 Residence / Studio Mark Randel + David Chipperfield - Interior Photography, Wood, Concrete

Os materiais escolhidos refletem uma paleta de tons terrosos, harmonizando-se com o ambiente natural circundante e trazendo a essência do parque para dentro de casa. As texturas táteis, desde o toque frio da pedra até a suavidade sedosa das madeiras nobres, convidam o toque e estimulam os sentidos, criando uma experiência imersiva e sensorial que transcende o mero conceito de habitação.

Kolberger 5 Residence / Studio Mark Randel + David Chipperfield - Exterior Photography, Concrete
Kolberger 5 Residence / Studio Mark Randel + David Chipperfield - Exterior Photography, Concrete

No coração deste edifício, encontramos espaços comuns que promovem um senso de comunidade e pertencimento. Salas de estar generosas, onde os residentes podem se reunir e compartilhar momentos preciosos, são complementadas por varandas exuberantes com vistas panorâmicas do parque, oferecendo um cenário perfeito para contemplação e relaxamento.

Kolberger 5 Residence / Studio Mark Randel + David Chipperfield - Exterior Photography
Kolberger 5 Residence / Studio Mark Randel + David Chipperfield - Exterior Photography

Em sua essência, este projeto é uma celebração da vida em todas as suas nuances. É uma manifestação do desejo humano de encontrar beleza e significado na simplicidade do cotidiano, um testemunho de que a verdadeira sofisticação reside na harmonia entre o antigo e o novo, o natural e o construído.

Kolberger 5 Residence / Studio Mark Randel + David Chipperfield - Image 7 of 48
Kolberger 5 Residence / Studio Mark Randel + David Chipperfield - Image 7 of 48

O edifício, com sua presença imponente mas acolhedora, é uma adição magnífica ao bairro, enriquecendo o tecido urbano e oferecendo uma nova perspectiva sobre o que significa viver com elegância e propósito. Assim, a Kolberger 5 Residence não é apenas um local para morar, mas um santuário onde história e modernidade coexistem em perfeita sinfonia.

Kolberger 5 Residence / Studio Mark Randel + David Chipperfield - Image 8 of 48
Kolberger 5 Residence / Studio Mark Randel + David Chipperfield - Image 8 of 48

Mantenha-se Informado

Receba nossa seleção semanal de projetos e reflexões sobre arquitetura.