EN PT

O Refúgio Sustentável de Angela Merkel

Um santuário de educação e inovação na Albânia, onde a arquitetura encontra a autossuficiência.

Escola Angela Merkel / Commonsense Studio - Fotografia de Exterior, Aido

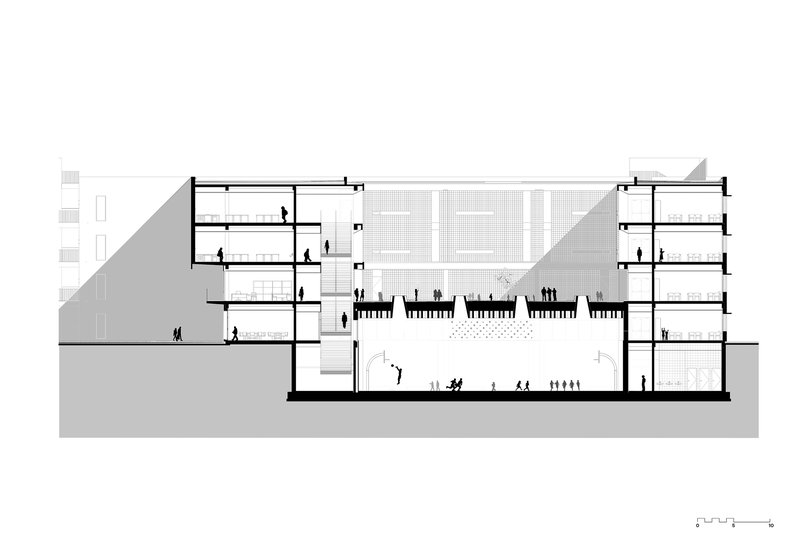
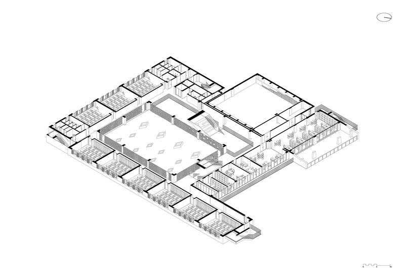
No coração da Albânia, onde a tradição e a modernidade se entrelaçam, ergue-se a majestosa Escola Angela Merkel, uma edificação que transcende o conceito de espaço educacional. Com a capacidade de acolher 1.300 estudantes, do primeiro ao nono ano, esta escola não é apenas uma das maiores instituições de ensino do país, mas também uma pioneira em autossuficiência energética.

Escola Angela Merkel / Commonsense Studio - Fotografia de Exterior, Vista Aérea, Urbano
Escola Angela Merkel / Commonsense Studio - Fotografia de Exterior, Vista Aérea, Urbano

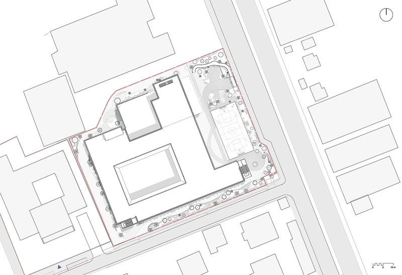
Implantada ao longo de um eixo vital de circulação urbana, a escola se situa em um ponto estratégico de um polo educacional já estabelecido, compartilhando suas fronteiras com um jardim de infância e outra escola. Esta localização não é apenas geográfica, mas também cultural, inserindo a escola em um contexto de aprendizado contínuo e colaboração comunitária.

Escola Angela Merkel / Commonsense Studio - Fotografia de Exterior
Escola Angela Merkel / Commonsense Studio - Fotografia de Exterior

Ao adentrar seus portões, somos imediatamente envolvidos por uma atmosfera de tranquilidade e inspiração. A luz natural, filtrada por amplas janelas, dança delicadamente sobre superfícies cuidadosamente escolhidas, criando um jogo de sombras que instiga a curiosidade e o pensamento crítico. As salas de aula, concebidas como espaços de interação e troca, convidam ao aprendizado colaborativo, enquanto os corredores amplos e bem iluminados se transformam em extensões do ambiente de ensino, lugares de encontro e diálogo.

Escola Angela Merkel / Commonsense Studio - Fotografia de Exterior, Fachada, Concreto
Escola Angela Merkel / Commonsense Studio - Fotografia de Exterior, Fachada, Concreto

Os materiais utilizados na construção da Escola Angela Merkel foram escolhidos não apenas por sua durabilidade, mas também por sua capacidade de criar um ambiente harmonioso e acolhedor. A madeira, com suas nuances quentes e texturas táteis, contrasta com o concreto exposto, um símbolo da robustez e permanência. Este diálogo entre o natural e o industrial reflete a filosofia pedagógica da escola, que valoriza tanto o respeito pelas tradições quanto a busca incessante por inovação.

Escola Angela Merkel / Commonsense Studio - Fotografia de Interiores
Escola Angela Merkel / Commonsense Studio - Fotografia de Interiores

A autossuficiência energética da escola é uma ode ao futuro sustentável, um testemunho da capacidade humana de criar espaços que coexistem em harmonia com o meio ambiente. Painéis solares discretamente integrados à arquitetura fornecem energia limpa, enquanto sistemas de coleta de água da chuva e isolamento térmico eficiente garantem que o consumo de recursos naturais seja minimizado. Esta abordagem holística não é apenas uma lição de sustentabilidade para os alunos, mas também um exemplo para a comunidade mais ampla.

Escola Angela Merkel / Commonsense Studio - Fotografia de Interiores, Sala de Estar
Escola Angela Merkel / Commonsense Studio - Fotografia de Interiores, Sala de Estar

Ao final do dia, quando a luz suave do entardecer banha a escola, suas linhas arquitetônicas ganham uma nova vida, revelando detalhes antes ocultos e acentuando a beleza serena de seu design. A Escola Angela Merkel não é apenas um edifício, mas uma declaração de princípios, um espaço onde a educação é cultivada em um ambiente que inspira a criatividade e o respeito pelo nosso planeta.

Escola Angela Merkel / Commonsense Studio - Imagem 7 de 37
Escola Angela Merkel / Commonsense Studio - Imagem 7 de 37

Assim, a Escola Angela Merkel se apresenta como um farol de esperança e inovação na paisagem educacional da Albânia, onde cada dia é uma oportunidade para aprender, crescer e contribuir para um mundo melhor.

Escola Angela Merkel / Commonsense Studio - Fotografia de Exterior
Escola Angela Merkel / Commonsense Studio - Fotografia de Exterior

Mantenha-se Informado

Receba nossa seleção semanal de projetos e reflexões sobre arquitetura.