EN PT

Sussurros de Luz: A Harmonia da Casa Dezoito

Uma Ode à Intimidade e ao Refúgio no Coração da Arquitetura Contemporânea

Casa Dezoito / Pereda Han Estudio - Imagem 1 de 31

A Casa Dezoito, concebida pelo renomado Pereda Han Estudio, é uma elegante residência unifamiliar que se desvela como um poema arquitetônico entrelaçado com a essência dos pátios e a atmosfera envolvente. Este projeto exalta a tipologia do pátio como elemento organizador, reinterpretando-o sob uma lógica contemporânea que privilegia a introspecção e a contemplação. A vida doméstica é ressignificada, voltando-se para o interior em um abraço de conforto e privacidade.

Casa Dezoito / Pereda Han Estudio - Imagem 6 de 31
Casa Dezoito / Pereda Han Estudio - Imagem 6 de 31

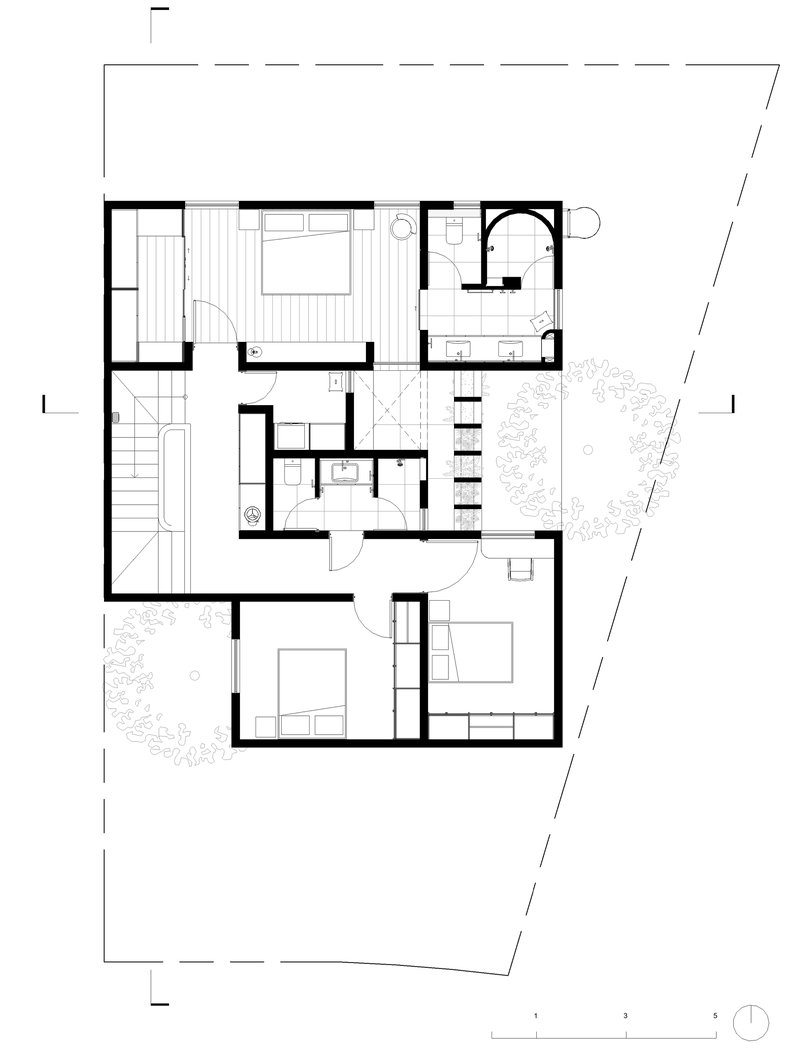
A planta em 'U' da residência é uma verdadeira sinfonia espacial, onde cada segmento do projeto gira em torno de um pátio central. Este vazio é mais do que um mero espaço arquitetônico; é o coração pulsante da casa, regulando a entrada de luz natural e favorecendo a ventilação cruzada. É ali que se tece uma narrativa de luz e sombra, onde vistas controladas acompanham o caminhar sereno dos habitantes.

Casa Dezoito / Pereda Han Estudio - Fotografia de Interiores, Madeira, Iluminação
Casa Dezoito / Pereda Han Estudio - Fotografia de Interiores, Madeira, Iluminação

O projeto se revela como um refúgio introspectivo, onde os espaços principais se orientam para os pátios internos, criando um ambiente doméstico que sussurra tranquilidade. A transição entre a agitação do mundo exterior e o silêncio interior é mediada por um espaço de acolhimento, onde uma árvore majestosa oferece sombra e filtra a luz, estabelecendo uma mudança gradual de escala e ritmo.

Casa Dezoito / Pereda Han Estudio - Fotografia de Interiores, Madeira, Cozinha, Iluminação, Bancada, Cadeira
Casa Dezoito / Pereda Han Estudio - Fotografia de Interiores, Madeira, Cozinha, Iluminação, Bancada, Cadeira

No interior, a cozinha emerge como o núcleo vital do projeto, conectando-se intimamente a um pátio exclusivo. Este espaço não é apenas uma área para refeições matinais, mas um ponto de encontro informal que favorece a ventilação e a iluminação natural. Ele articula visualmente diferentes ambientes, como o escritório, os dormitórios e as áreas de serviço, fortalecendo a conexão entre eles sem comprometer a privacidade de cada uso.

Casa Dezoito / Pereda Han Estudio - Fotografia de Interiores, Cozinha, Bancada
Casa Dezoito / Pereda Han Estudio - Fotografia de Interiores, Cozinha, Bancada

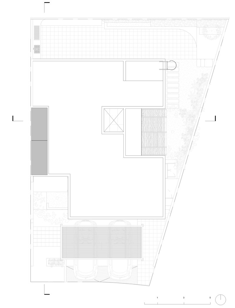
A área social, situada na porção posterior do lote, abre-se para o pátio, desenhando uma ponte fluida entre o interior e o exterior. Aqui, as atividades cotidianas encontram continuidade em um espaço que respira sob o céu aberto, uma dança harmoniosa entre dentro e fora.

Casa Dezoito / Pereda Han Estudio - Imagem 22 de 31
Casa Dezoito / Pereda Han Estudio - Imagem 22 de 31

No pavimento superior, quartos que se voltam para diferentes pátios garantem iluminação natural, ventilação e privacidade. O quarto principal, um santuário de intimidade, é complementado por espaços que o conectam ao exterior imediato, oferecendo uma experiência de repouso e serenidade.

Casa Dezoito / Pereda Han Estudio - Imagem 23 de 31
Casa Dezoito / Pereda Han Estudio - Imagem 23 de 31

A construção e os materiais utilizados são uma declaração de equilíbrio entre durabilidade e beleza. O concreto aparente no térreo confere uma solidez atemporal, enquanto acabamentos claros no pavimento superior oferecem leveza visual e aprimoram a proporção do conjunto. A vegetação, incorporada de forma estratégica, torna-se uma extensão viva dos espaços, reforçando a relação entre interior e exterior e acompanhando a vida cotidiana com sua presença serena e constante.

Casa Dezoito / Pereda Han Estudio - Imagem 4 de 31
Casa Dezoito / Pereda Han Estudio - Imagem 4 de 31