EN PT

Ressurgência de Luz: O Renascimento da Escola de Negócios da Narxoz University

Um edifício do passado é reimaginado como um farol de inovação e aprendizado em Almaty.

Narxoz University Business School / AGP Architects - Image 1 of 30

Em meio ao vibrante tecido urbano de Almaty, onde as montanhas tocam o céu e a natureza se entrelaça com a cidade, ergue-se a renovada Escola de Negócios da Universidade Narxoz. Outrora um edifício de 1978, agora transformado em um centro contemporâneo de aprendizado, este espaço redefine a experiência da educação executiva na Ásia Central. O projeto, concebido pelos talentosos AGP Architects, é um testemunho do poder da arquitetura em resgatar e reinventar histórias esquecidas.

Narxoz University Business School / AGP Architects - Exterior Photography
Narxoz University Business School / AGP Architects - Exterior Photography

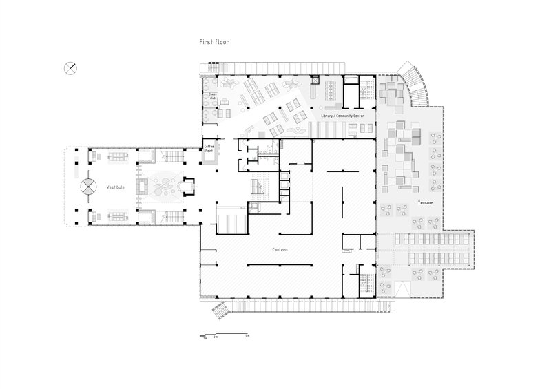
Ao adentrar o átrio principal, o visitante é imediatamente envolvido por uma atmosfera de luz e transparência. Grandes janelas permitem que a claridade natural banhe o interior, criando um jogo sutil de sombras que dança pelas paredes e pisos polidos. Este diálogo entre luz e sombra, entre interior e exterior, evoca a sensação de fluidez e continuidade, um reflexo do próprio percurso de aprendizado.

Narxoz University Business School / AGP Architects - Exterior Photography, Facade
Narxoz University Business School / AGP Architects - Exterior Photography, Facade

A escolha dos materiais é uma ode à simplicidade e à elegância. O uso de madeira clara, mármore e aço escovado confere ao espaço uma sensação de leveza e modernidade, enquanto texturas táteis convidam ao toque e à interação. Cada elemento foi cuidadosamente selecionado para promover um ambiente que inspira a criatividade e a reflexão, proporcionando aos alunos e profissionais um palco ideal para o intercâmbio de ideias.

Narxoz University Business School / AGP Architects - Exterior Photography
Narxoz University Business School / AGP Architects - Exterior Photography

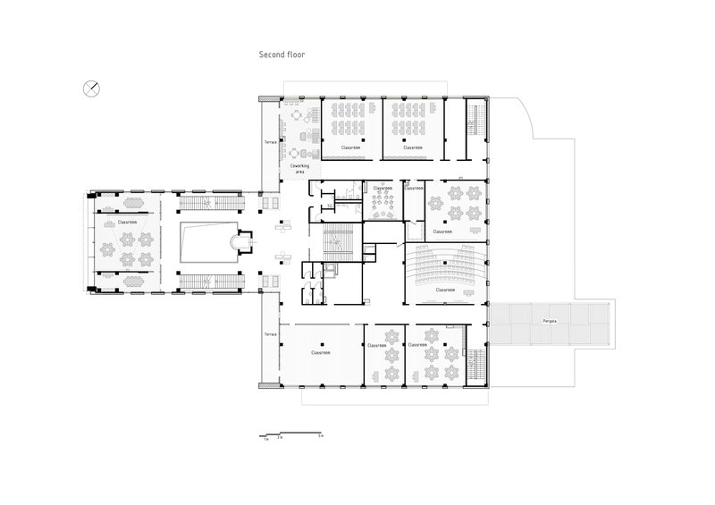
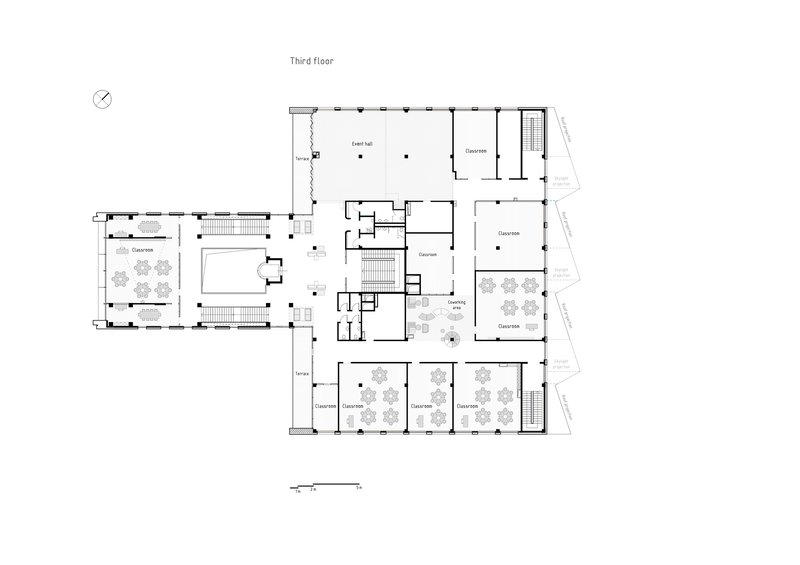
Os ambientes de estudo foram desenhados para fomentar a colaboração e a inovação. Salas de aula modulares e espaços de coworking oferecem flexibilidade e dinamismo, adaptando-se facilmente às diversas necessidades pedagógicas. Este design versátil reflete uma abordagem progressista à educação, onde o conhecimento é compartilhado em um contexto de diálogo e exploração coletiva.

Narxoz University Business School / AGP Architects - Interior Photography
Narxoz University Business School / AGP Architects - Interior Photography

No coração do edifício, uma escadaria escultórica se ergue, simbolizando o percurso ascendente do aprendizado e do autodesenvolvimento. Cada degrau representa um passo em direção ao futuro, um convite para subir e explorar novos horizontes. Esta metáfora arquitetônica é um lembrete constante do potencial transformador da educação e do papel fundamental da arquitetura em moldar experiências significativas.

Narxoz University Business School / AGP Architects - Interior Photography, Wood, Stairs, Glass
Narxoz University Business School / AGP Architects - Interior Photography, Wood, Stairs, Glass

A renovação da Escola de Negócios da Narxoz University não é apenas uma reimaginação de um espaço físico, mas uma reinterpretação de sua identidade institucional. Ao trazer à vida um edifício outrora esquecido, os arquitetos criaram um ícone moderno que serve como um farol de inovação e excelência acadêmica na região.

Narxoz University Business School / AGP Architects - Exterior Photography
Narxoz University Business School / AGP Architects - Exterior Photography

Este projeto é um exemplo inspirador de como a arquitetura pode transcender o tempo e o espaço, criando ambientes que não apenas atendem às necessidades funcionais, mas também elevam a experiência humana. A Narxoz University, através desta transformação, convida-nos a refletir sobre o verdadeiro significado do aprendizado e o poder da arquitetura em nos guiar nesta jornada contínua de descoberta.

Narxoz University Business School / AGP Architects - Exterior Photography
Narxoz University Business School / AGP Architects - Exterior Photography